
How to Outsource Millwork Shop Drawings Without Losing Quality Control
Vetting vendors, managing handoffs, and keeping production on schedule when you bring in outside drafters.
200+ specialized CAD drafters and Revit modelers who understand millwork production. Serving cabinet shops and millwork manufacturers across Texas, California, New York, Florida, and nationwide — accurate, buildable drawings, start next business day.
From simple cabinet layouts to complex Revit assemblies — one team, one process, consistent quality.

Production-ready packages: elevations, sections, profiles, hardware schedules, and material callouts to AWI standards.
Learn more →
Layout plans, elevations, door/drawer configs, interior fitting details, and cutlist-ready schedules — matched to your shop's standards.
Learn more →
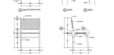
Assembly views, joinery details, upholstery specs, and finish schedules for custom furniture fabricators and woodworking shops.
Learn more →
Fully parametric Revit families and LOD 300/400 assemblies for millwork components — ready for coordination and scheduling.
Learn more →
Coordinated floor plans, interior elevations, and reflected ceiling drawings that show millwork in context for GC coordination.
Learn more →
Turn hand sketches, scanned prints, or PDFs into clean, editable DWG files — with all dimensions and details preserved.
Learn more →A tight process with no unnecessary back-and-forth. Most projects start the same day.
Share your sketches, PDFs, or architect drawings. Any format works — we figure out the rest.
Your project manager reviews the scope and sends a fixed-cost estimate with timeline before any work starts.
Work begins immediately. A senior drafter reviews every set before delivery — no skipped checks.
Receive your drawings. Request as many revisions as needed — we stay until the drawings are production-ready.
We can begin work the next business day. Rush prioritization available for tight schedules.
Senior QC review on every set. Correct material thicknesses, hardware clearances, and tolerances.
Specialists with architectural backgrounds — not generalist CAD operators picking up millwork on the side.
No revision caps. We stay on a project until you're ready to cut — it's part of the deal.
DWG, DXF, PDF, RVT, IFC, SKP — we work with what you have and deliver in what your GC needs.
Signed on every engagement. Your designs, your clients, your IP — never shared or repurposed.
From single-person cabinet shops to regional millwork manufacturers.
"I honestly can't say enough good things about this team! We've worked with them on several projects now and every single time has been fantastic. They're so quick to respond and really listen to feedback — always making the adjustments we suggest."
"The team is incredibly responsive, talented and always able to deliver at a very high level for my studio. We've been working with them for a few years now and the experience is consistent and makes our job much easier to navigate. Highly recommend them."
"As an interior design firm, we have worked with the team for a few years now. They understand the design elements we are trying to achieve without much explanation. They understand the assignment!! Very quick, thorough, and a pleasure to work with."
Practical articles on shop drawings, AWI standards, and outsourcing drafting work.

Vetting vendors, managing handoffs, and keeping production on schedule when you bring in outside drafters.

When does BIM make sense for millwork, and when is 2D CAD still the right tool?

What AWI quality grades actually mean for your shop drawings, tolerances, and material specs.
Download a curated set of real drawing samples across eight project types — millwork, cabinets, furniture, and Revit. No paywall, delivered to your inbox.
Sent directly to your inbox.
A client manager will contact you soon.
Send us a scope and get a fixed-cost quote within 2 hours. No obligation.